Модульный гостиничный комплекс
в Чишминском районе
в Чишминском районе
Проект, 2023
Проект гостиничного комплекса на территории Евразийского музея кочевых цивилизаций (ЕМКЦ) в Чишминском районе Республики Башкортостан предполагает создание максимально вписанного в природу и в то же время минимально влияющего на нее архитектурного сооружения.
Территория гостиничного комплекса расположена на берегу реки Слак, закрыта от взгляда с дороги сильным подъемом рельефа. Комплекс включает 14 блоков-номеров на металлических опорах, соединенных деревянным пешеходным настилом. К комплексу ведет дощатая тропа от здания парковки ЕМКЦ. По ней мы попадаем на входную площадку с административным блоком, в котором располагается приемная зона. Далее следуем по настилу, вдоль которого расположились жилые блоки, к зданию кафе.
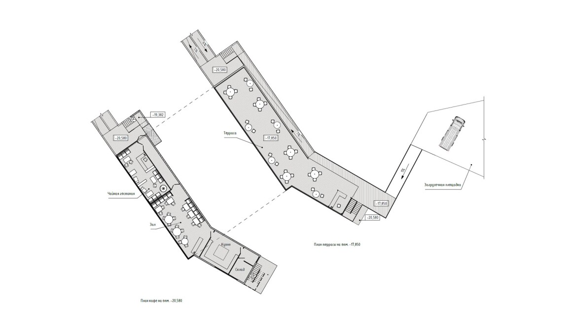
Кафе включает в себя чайную гостиную с камином, где можно выпить чаю, почитать книгу или просто пообщаться; основной зал; открытую террасу на кровле. С настила есть спуски непосредственно на берег для прогулок в речной зоне. Настил имеет бортики безопасности и ограждения в местах опасных перепадов высот с окружающим рельефом.
Жилые блоки имеют габариты 3,4х6,3 м, изготавливаются на производстве. Административный блок имеет размеры 6,8х6,2 м, изготавливаются также заводским способом.
Основной зал имеет панорамное остекление, мягкие диваны, барную стойку. На террасе на кровле расположены столы с зонтиками и мобильная барная стойка с тканевым навесом, убираемые на зимний период. На террасу попадаем посредством протяженного пандуса с северной стороны здания. Из всех номеров, здания кафе открывается вид на реку Слак, окружающую природу, поля.
Территория гостиничного комплекса расположена на берегу реки Слак, закрыта от взгляда с дороги сильным подъемом рельефа. Комплекс включает 14 блоков-номеров на металлических опорах, соединенных деревянным пешеходным настилом. К комплексу ведет дощатая тропа от здания парковки ЕМКЦ. По ней мы попадаем на входную площадку с административным блоком, в котором располагается приемная зона. Далее следуем по настилу, вдоль которого расположились жилые блоки, к зданию кафе.
Кафе включает в себя чайную гостиную с камином, где можно выпить чаю, почитать книгу или просто пообщаться; основной зал; открытую террасу на кровле. С настила есть спуски непосредственно на берег для прогулок в речной зоне. Настил имеет бортики безопасности и ограждения в местах опасных перепадов высот с окружающим рельефом.
Жилые блоки имеют габариты 3,4х6,3 м, изготавливаются на производстве. Административный блок имеет размеры 6,8х6,2 м, изготавливаются также заводским способом.
Основной зал имеет панорамное остекление, мягкие диваны, барную стойку. На террасе на кровле расположены столы с зонтиками и мобильная барная стойка с тканевым навесом, убираемые на зимний период. На террасу попадаем посредством протяженного пандуса с северной стороны здания. Из всех номеров, здания кафе открывается вид на реку Слак, окружающую природу, поля.