Школа с детским садом и детской школой искусств "Елань-Чишма"
Интро
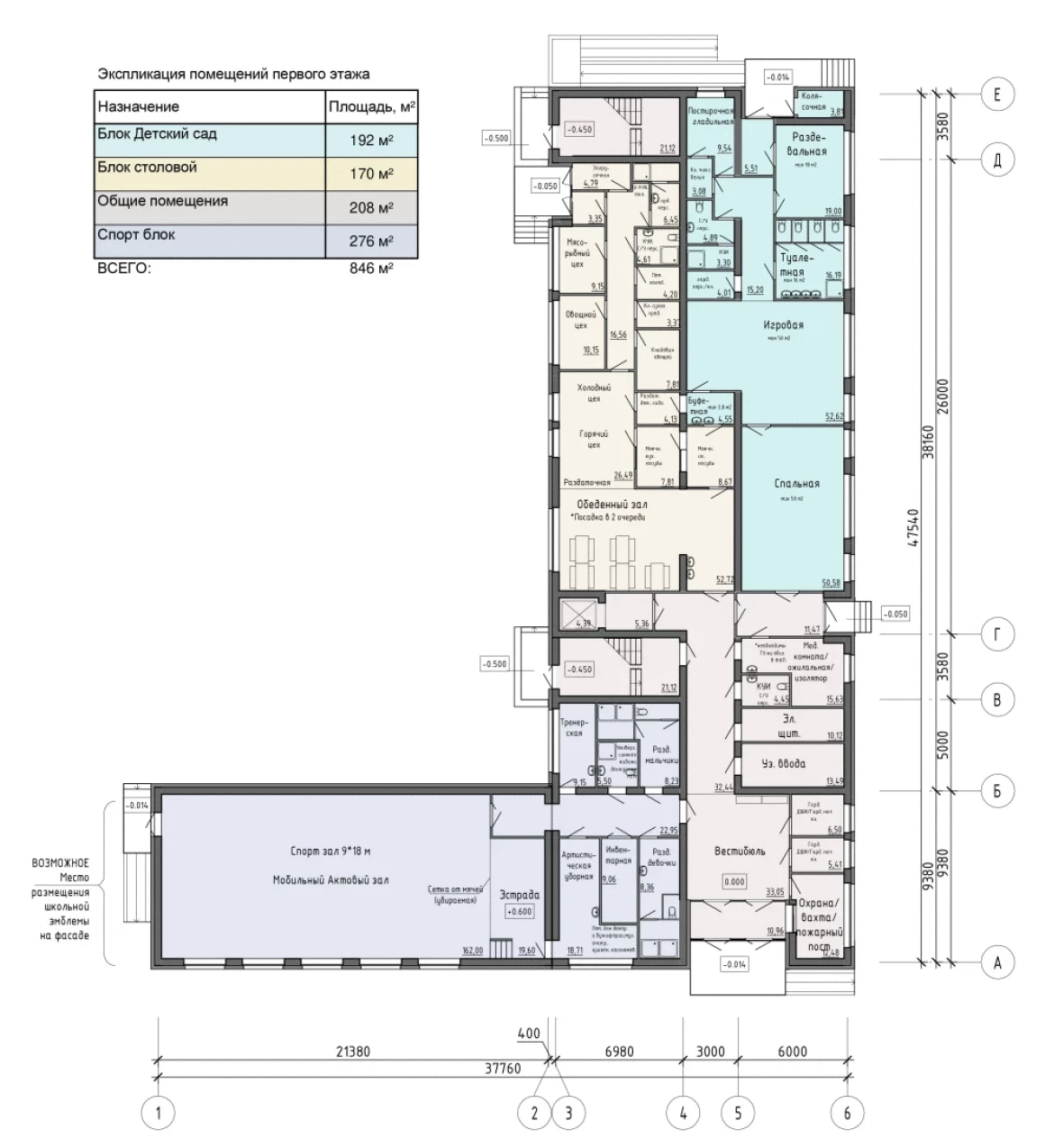
Проектом предусмотрено строительство начальной школы на 40 мест, совмещенной с детским садом на 20 мест и детской школой искусств
Здание Г-образной формы в плане размещение на проектируемой территории с учетом градостроительной ситуации. Расположение и форма закрепляют угол территории и полностью осматривается с главной улицы села Елань-Чишма.
Фасады здания предусмотрены из стальных металлокассет, а благодаря конструктивному решению односкатной кровли , обращенной в дворовую сторону, получаются лаконичные и современные фасады. Также благодаря данному решению кровли со стороны главных фасадов отсутствуют карнизы, фасадные решения являются частью парапета и обеспечивает защиту посетителей от возможного падения снега, а также не требует устройства водостоков и желобов, что в свою очередь облегчает эксплуатацию здания в дальнейшем.
Входные группы организованы в виде вырезанных объемов с основного массива здания, что поддерживает общую архитектурную стилистку объемов здания. Также данное решение обеспечивает и утилитарные функции по эксплуатации здания благодаря отсутствию выносных козырьков сложных входных групп. Входные "ниши" выделены ярким цветовой отделкой для выделения и акцентирования внимания. Со стороны главной улицы организована широкая площадка, раскрывая торжественность и лаконичность прилегающего благоустройства территории. Также данная площадь перед основным входом в школу позволит использовать данное пространство для массовых уличных мероприятий.
Фасады выполнены лаконичными, высокое качество и достойный вид усиливает использование темный цвет заполнения оконных и дверных проемов. Все помещения классов ориентированы на восток и обеспечивают инсоляцию утренним солнцем. Инсоляцией в полной мере обеспечивается и спортивный зал, окна которого ориентированы на южную сторону.
Территория школы организована с учетом градостроительной ситуации, ориентации по сторонам света и с учетом размещения всех требуемых площадей. На территории школы предусмотрены физкультурное-спортивная зона, учебноопытной зоны, игровой площадки для детского сада, а также хозяйственной зоны.
На первом этаже предусмотрена следующие функциональные блоки6 спортивный, столовй, детского сада и вспомогательных помещений.
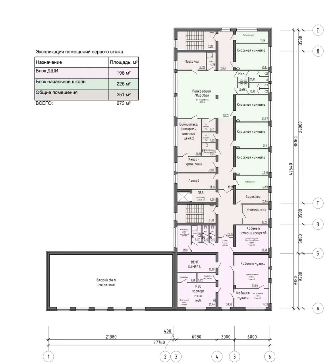
На втором этаже предусмотрены блок начальной школы и блок детской школы искусств.
Предусмотренные проектные решения по территории и планировочным решениям, а также архитектурно-эстетические качество объекта позволят по завершении реализации данного проекта получить современную многофункциональную школу с заделом на развитие, и будет украшением для жителей села Елань-Чишма, но достойным для подражания для всей Башкирии
Здание Г-образной формы в плане размещение на проектируемой территории с учетом градостроительной ситуации. Расположение и форма закрепляют угол территории и полностью осматривается с главной улицы села Елань-Чишма.
Фасады здания предусмотрены из стальных металлокассет, а благодаря конструктивному решению односкатной кровли , обращенной в дворовую сторону, получаются лаконичные и современные фасады. Также благодаря данному решению кровли со стороны главных фасадов отсутствуют карнизы, фасадные решения являются частью парапета и обеспечивает защиту посетителей от возможного падения снега, а также не требует устройства водостоков и желобов, что в свою очередь облегчает эксплуатацию здания в дальнейшем.
Входные группы организованы в виде вырезанных объемов с основного массива здания, что поддерживает общую архитектурную стилистку объемов здания. Также данное решение обеспечивает и утилитарные функции по эксплуатации здания благодаря отсутствию выносных козырьков сложных входных групп. Входные "ниши" выделены ярким цветовой отделкой для выделения и акцентирования внимания. Со стороны главной улицы организована широкая площадка, раскрывая торжественность и лаконичность прилегающего благоустройства территории. Также данная площадь перед основным входом в школу позволит использовать данное пространство для массовых уличных мероприятий.
Фасады выполнены лаконичными, высокое качество и достойный вид усиливает использование темный цвет заполнения оконных и дверных проемов. Все помещения классов ориентированы на восток и обеспечивают инсоляцию утренним солнцем. Инсоляцией в полной мере обеспечивается и спортивный зал, окна которого ориентированы на южную сторону.
Территория школы организована с учетом градостроительной ситуации, ориентации по сторонам света и с учетом размещения всех требуемых площадей. На территории школы предусмотрены физкультурное-спортивная зона, учебноопытной зоны, игровой площадки для детского сада, а также хозяйственной зоны.
На первом этаже предусмотрена следующие функциональные блоки6 спортивный, столовй, детского сада и вспомогательных помещений.
На втором этаже предусмотрены блок начальной школы и блок детской школы искусств.
Предусмотренные проектные решения по территории и планировочным решениям, а также архитектурно-эстетические качество объекта позволят по завершении реализации данного проекта получить современную многофункциональную школу с заделом на развитие, и будет украшением для жителей села Елань-Чишма, но достойным для подражания для всей Башкирии