Приспособление ОКН «Гауптвахта», г. Уфа
Интро
Проектируемый объект культурного наследия «I-й губернский музей (гауптвахта)», (выявленный ОКН), расположен по адресу ул. Пушкина, 85/1, г. Уфа, Республика Башкортостан. Здание является объектом культурного наследия ценным с точки зрения архитектуры, представляет общественный и культурный интерес своими архитектурными характеристиками, типичными и индивидуальными особенностями.
Натурные исследования выполнены методом трехмерного наземного лазерного сканирования прибором Leica HDS 4050 – высокоскоростной импульсный лазерный сканер со встроенной коаксиальной камерой высокого разрешения, точность единичного измерения: местоположение – 6 мм, расстояние – 4 мм, угол(гор./вер.) – 60 мкрд, 1 sigma, точность моделирования поверхности – 2 мм, 1 sigma, точность измерений марки - 2 мм, 1 sigma.
Результат лазерного сканирования. Массив объединенных точек, отображение – интенсивность
Результат лазерного сканирования. Массив объединенных точек, отображение – RGB
В рамках натурных исследований было проведено вскрытие отделочных слоев для определения характера отделки, а также исторического цветового решения фасадов
В результате проведенных зондажей было установлено 6 различных окрасочных слоев. Одним из первых слоев выявлен красный цвет, характерный для цветовой палитры XX века
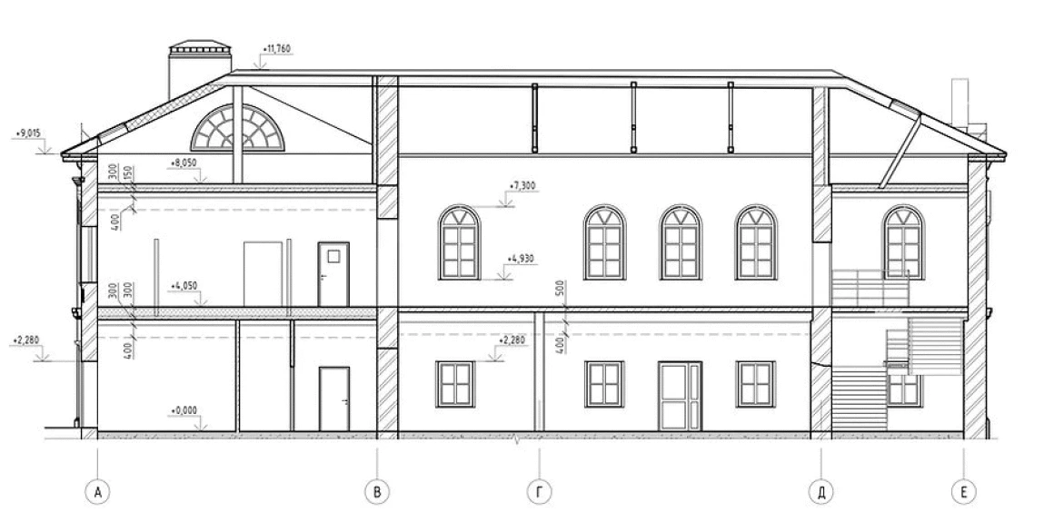
Главной задачей проекта является реставрация и приспособление объекта в целях устройства предприятия общественного питания. Основными помещениями являются кафе на готовой продукции с производственными и бытовыми помещениями, торговый зал с бытовыми помещениями на 1 этаже, ресторан с производственными и бытовыми помещениями на 2 этаже. Для вертикальной связи между этажами предусматриваются две лестницы в лестничных клетках. Объемно-пространственная композиция здания решена в рамках реставрации объекта с восстановлением исторического облика с сохранением сложившихся трансформаций объекта с учетом сохранения пристройки с западной стороны здания:
- реставрация сохранившихся декоративных элементов фасадов (меж-этажный пояс, фриз, наличники и сандрики окон второго этажа, под-оконные ниши окон второго этажа);
- воссоздание окон первого этажа с декоративным оформлением;
- воссоздание аттиков над ризалитами на главном фасаде;
- восстановление дверных проемов на главном фасаде с декоративным оформлением и коваными металлическими навесами;- восстановление цоколя;
- восстановление исторического рисунка заполнения оконных проемов;- восстановление венчающего карниза;
- приведение в соответствие с фасадами исторического здания при-строенной в советское время части;
- устройство мансардных окон на кровле в пристроенной части здания, для возможности устройства мансардного этажа
Натурные исследования выполнены методом трехмерного наземного лазерного сканирования прибором Leica HDS 4050 – высокоскоростной импульсный лазерный сканер со встроенной коаксиальной камерой высокого разрешения, точность единичного измерения: местоположение – 6 мм, расстояние – 4 мм, угол(гор./вер.) – 60 мкрд, 1 sigma, точность моделирования поверхности – 2 мм, 1 sigma, точность измерений марки - 2 мм, 1 sigma.
Результат лазерного сканирования. Массив объединенных точек, отображение – интенсивность
Результат лазерного сканирования. Массив объединенных точек, отображение – RGB
В рамках натурных исследований было проведено вскрытие отделочных слоев для определения характера отделки, а также исторического цветового решения фасадов
В результате проведенных зондажей было установлено 6 различных окрасочных слоев. Одним из первых слоев выявлен красный цвет, характерный для цветовой палитры XX века
Главной задачей проекта является реставрация и приспособление объекта в целях устройства предприятия общественного питания. Основными помещениями являются кафе на готовой продукции с производственными и бытовыми помещениями, торговый зал с бытовыми помещениями на 1 этаже, ресторан с производственными и бытовыми помещениями на 2 этаже. Для вертикальной связи между этажами предусматриваются две лестницы в лестничных клетках. Объемно-пространственная композиция здания решена в рамках реставрации объекта с восстановлением исторического облика с сохранением сложившихся трансформаций объекта с учетом сохранения пристройки с западной стороны здания:
- реставрация сохранившихся декоративных элементов фасадов (меж-этажный пояс, фриз, наличники и сандрики окон второго этажа, под-оконные ниши окон второго этажа);
- воссоздание окон первого этажа с декоративным оформлением;
- воссоздание аттиков над ризалитами на главном фасаде;
- восстановление дверных проемов на главном фасаде с декоративным оформлением и коваными металлическими навесами;- восстановление цоколя;
- восстановление исторического рисунка заполнения оконных проемов;- восстановление венчающего карниза;
- приведение в соответствие с фасадами исторического здания при-строенной в советское время части;
- устройство мансардных окон на кровле в пристроенной части здания, для возможности устройства мансардного этажа