Мечеть комплекса Евразийского музея
кочевых цивилизаций
кочевых цивилизаций
Проект, 2024
Этот проект представляет собой инновационную мечеть в составе Евразийского музея кочевых цивилизаций — пространство, где древние традиции номадов встречаются с минималистичным современным дизайном.
Мы создали здание, которое гармонично вписывается в ландшафт, используя прозрачные стеклянные фасады для ощущения единства с природой, деревянные элементы с орнаментами в стиле кочевых культур и минарет в форме полумесяца как символ духовности. Интерьер подчёркивает спокойствие и сосредоточенность, сочетая функциональность с эстетикой: большие окна пропускают естественный свет, а материалы — дерево, стекло и камень — отсылают к наследию евразийских степей.
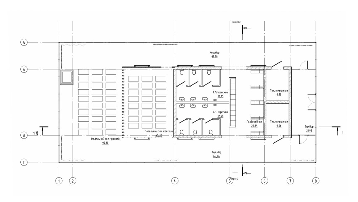
Планировка и общий план
Компактное одноэтажное здание с чётким зонированием: центральная молитвенная зона для мужчин (97,8 кв.м) ориентирована на киблу, женский молельный зал (45,4 кв.м), коридоры (65,4 кв.м каждый) обеспечивают удобный доступ, отдельные зоны омовения для мужчин и женщин (по 13 кв.м). Технические помещения (топочная, хранилища) размещены в задней части для минимального вмешательства в основное пространство.
Фасады
Фасады А-Г и Г-А подчёркивают горизонтальность здания: стеклянные стены с деревянными вертикальными ламелями создают эффект «прозрачного шатра». Фасады 1-8 и 8-1 включают арочные проёмы и орнаментальные панели, вдохновлённые номадским искусством. Длина главного фасада — 30 м, высота — 4,5–6 м с наклоном для сбора света.
Общая атмосфера
Проект сочетает современный минимализм с культурным наследием: прозрачность стекла символизирует открытость, деревянные элементы — тепло традиции, а интеграция с музеем подчёркивает образовательную роль. Здесь верующие могут молиться в гармонии с природой, а посетители — знакомиться с историей номадов через архитектуру. Мечеть Евразийского музея кочевых цивилизаций — это мост между прошлым и будущим, где архитектура служит духовности и культуре.
Мы создали здание, которое гармонично вписывается в ландшафт, используя прозрачные стеклянные фасады для ощущения единства с природой, деревянные элементы с орнаментами в стиле кочевых культур и минарет в форме полумесяца как символ духовности. Интерьер подчёркивает спокойствие и сосредоточенность, сочетая функциональность с эстетикой: большие окна пропускают естественный свет, а материалы — дерево, стекло и камень — отсылают к наследию евразийских степей.
Планировка и общий план
Компактное одноэтажное здание с чётким зонированием: центральная молитвенная зона для мужчин (97,8 кв.м) ориентирована на киблу, женский молельный зал (45,4 кв.м), коридоры (65,4 кв.м каждый) обеспечивают удобный доступ, отдельные зоны омовения для мужчин и женщин (по 13 кв.м). Технические помещения (топочная, хранилища) размещены в задней части для минимального вмешательства в основное пространство.
Фасады
Фасады А-Г и Г-А подчёркивают горизонтальность здания: стеклянные стены с деревянными вертикальными ламелями создают эффект «прозрачного шатра». Фасады 1-8 и 8-1 включают арочные проёмы и орнаментальные панели, вдохновлённые номадским искусством. Длина главного фасада — 30 м, высота — 4,5–6 м с наклоном для сбора света.
Общая атмосфера
Проект сочетает современный минимализм с культурным наследием: прозрачность стекла символизирует открытость, деревянные элементы — тепло традиции, а интеграция с музеем подчёркивает образовательную роль. Здесь верующие могут молиться в гармонии с природой, а посетители — знакомиться с историей номадов через архитектуру. Мечеть Евразийского музея кочевых цивилизаций — это мост между прошлым и будущим, где архитектура служит духовности и культуре.