Реставрация ОКН
«Дом Корлейса»
«Дом Корлейса»
Концепция, 2022
Объект проектирования — одноэтажное кирпичное здание, расположенное по адресу: Республика Башкортостан, Мелеузовский район, с. Воскресенское, ул. Карла Маркса, 68.
Здание находится в центре старейшего на Урале села Воскресенское, в живописном месте — на берегу речки Тор, рядом с руинами знаменитого Воскресенского медеплавильного завода и Воскресенской церкви XVIII века, объектами культурного наследия федерального значения. Здание дома Э. И. Корлейса (жилого дома с амбулаторией) входит в «Комплекс Воскресенского медеплавильного завода». Год постройки неизвестен, датируется началом XX века. За домом возвышается южноуральский склон «Синие Венцы».
В 1970 году здесь открыли Воскресенскую картинную галерею на основе дара из 126 произведений (живопись, графика, скульптура) учеников и преподавателей Московской средней художественной школы при Институте им. В. И. Сурикова, эвакуированных в 1941–1943 гг. в с. Воскресенское. Авторы — всемирно известные художники: Г. М. Коржев, П. П. Оссовский, В. И. Иванов, В. Ф. Стожаров, А. П. Ткачёв, А. С. и С. С. Тутуновы, В. З. Пурыгин, И. Д. Архипов, В. А. Бабицын, Р. А. Кобозев, О. В. Буткевич, А. В. Марц, Б. К. Немечек, К. Ф. Власова и др. В 1987 г. добавили 137 работ живописи и графики (60 из 1941–1945 гг.: М. В. Добросердов, В. В. Почиталов, А. П. Шорчев, С. П. Михайлов, Г. М. Шегаль и др.); в 1996–2005 гг. — 24 произведения (17 из 1941–1945 гг.). Дары москвичей создали уникальные коллекции, не имеющие аналогов в провинциальных музеях.
Воскресенская картинная галерея — также музей истории и культуры старинного села и Воскресенского медеплавильного завода, первого и крупнейшего на Южном Урале. В нём представлены изделия народного декоративно-прикладного искусства местных жителей. Галерея проводит выставки, пленэры, практики студентов и встречи с художниками.
Количество экспонатов коллекции «воскресенцев» — 349 единиц.
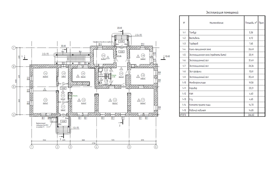
Планировка помещений
Объемно-планировочные решения: 1-й этаж — вестибюль, гардероб, кино-лекционная зона, экспозиция предметов быта, залы (графики, 3 экспозиционных), фондохранилище, КУИ, санузел (универсальная кабина), комната пищи, кабинет; подвал — ИТП, техподполье.
Режим хранения
Ключевой фактор — температура 18±1°C, влажность 55±5% в хранилищах и экспозициях.
Защита от микроорганизмов, грибков, насекомых, грызунов: протирка оборудования для органики 2%-ным формальдегидом.
Фонды на стеллажах по материалам в отдельном помещении со столом для чистки, упаковки, перемещения.
Экспозиция и удобства
Маршрут: кино-лекционная зона → предметы быта → зал графики → 3 экспозиционных зала (стенды, подсветка, подвесы картин, подиумы).
Гардероб с зеркалом, вешалками, пуфом; ценные экспонаты — в витринах с освещением и замками.
Служебные помещения
Кабинет по СП 117.13330.2011 (6 м²/место): мебель, ПК по нормам, естественный свет; комната пищи — кухня (холодильник, СВЧ, чайник, мойка), стол, стулья.
Санитарная обработка — по нормам разрешёнными средствами, по инструкциям.
Технологическая часть проекта разработана по архитектурно-строительному заданию и нормативам СП 118/117/12.13130, рекомендациям по музеям (1988), инструкциям по учету ценностей, ФЗ №54-ФЗ и СП 132.13330. Решения обеспечивают функциональное зонирование и технологические связи помещений.
Здание находится в центре старейшего на Урале села Воскресенское, в живописном месте — на берегу речки Тор, рядом с руинами знаменитого Воскресенского медеплавильного завода и Воскресенской церкви XVIII века, объектами культурного наследия федерального значения. Здание дома Э. И. Корлейса (жилого дома с амбулаторией) входит в «Комплекс Воскресенского медеплавильного завода». Год постройки неизвестен, датируется началом XX века. За домом возвышается южноуральский склон «Синие Венцы».
В 1970 году здесь открыли Воскресенскую картинную галерею на основе дара из 126 произведений (живопись, графика, скульптура) учеников и преподавателей Московской средней художественной школы при Институте им. В. И. Сурикова, эвакуированных в 1941–1943 гг. в с. Воскресенское. Авторы — всемирно известные художники: Г. М. Коржев, П. П. Оссовский, В. И. Иванов, В. Ф. Стожаров, А. П. Ткачёв, А. С. и С. С. Тутуновы, В. З. Пурыгин, И. Д. Архипов, В. А. Бабицын, Р. А. Кобозев, О. В. Буткевич, А. В. Марц, Б. К. Немечек, К. Ф. Власова и др. В 1987 г. добавили 137 работ живописи и графики (60 из 1941–1945 гг.: М. В. Добросердов, В. В. Почиталов, А. П. Шорчев, С. П. Михайлов, Г. М. Шегаль и др.); в 1996–2005 гг. — 24 произведения (17 из 1941–1945 гг.). Дары москвичей создали уникальные коллекции, не имеющие аналогов в провинциальных музеях.
Воскресенская картинная галерея — также музей истории и культуры старинного села и Воскресенского медеплавильного завода, первого и крупнейшего на Южном Урале. В нём представлены изделия народного декоративно-прикладного искусства местных жителей. Галерея проводит выставки, пленэры, практики студентов и встречи с художниками.
Количество экспонатов коллекции «воскресенцев» — 349 единиц.
Планировка помещений
Объемно-планировочные решения: 1-й этаж — вестибюль, гардероб, кино-лекционная зона, экспозиция предметов быта, залы (графики, 3 экспозиционных), фондохранилище, КУИ, санузел (универсальная кабина), комната пищи, кабинет; подвал — ИТП, техподполье.
Режим хранения
Ключевой фактор — температура 18±1°C, влажность 55±5% в хранилищах и экспозициях.
Защита от микроорганизмов, грибков, насекомых, грызунов: протирка оборудования для органики 2%-ным формальдегидом.
Фонды на стеллажах по материалам в отдельном помещении со столом для чистки, упаковки, перемещения.
Экспозиция и удобства
Маршрут: кино-лекционная зона → предметы быта → зал графики → 3 экспозиционных зала (стенды, подсветка, подвесы картин, подиумы).
Гардероб с зеркалом, вешалками, пуфом; ценные экспонаты — в витринах с освещением и замками.
Служебные помещения
Кабинет по СП 117.13330.2011 (6 м²/место): мебель, ПК по нормам, естественный свет; комната пищи — кухня (холодильник, СВЧ, чайник, мойка), стол, стулья.
Санитарная обработка — по нормам разрешёнными средствами, по инструкциям.
Технологическая часть проекта разработана по архитектурно-строительному заданию и нормативам СП 118/117/12.13130, рекомендациям по музеям (1988), инструкциям по учету ценностей, ФЗ №54-ФЗ и СП 132.13330. Решения обеспечивают функциональное зонирование и технологические связи помещений.