Приспособление ОКН «БЦ Патрикеев» в г. Стерлитамак
Интро
Реконструируемое административное здание расположено в центральной части города Стерлитамак. Здание построено в начале XX века и является объектом культурного наследия (памятник архитектуры) регионального значения «Здание общественное». Первоначально в здании размещались гостиничные номера
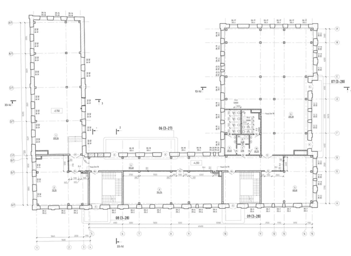
Планировочная структура определена основной задачей – создание бизнес-центра с организацией офисов свободной планировки. Основными помещениями являются офисные помещения, расположенные на 1, 2, 3 этажах. В подвале размещены технические помещения с отдельным входом со стороны двора. Главной задачей проекта является реконструкция здания с размещением офисных помещений на 1, 2, 3 этажах, сохраняя при этом исторический облик.
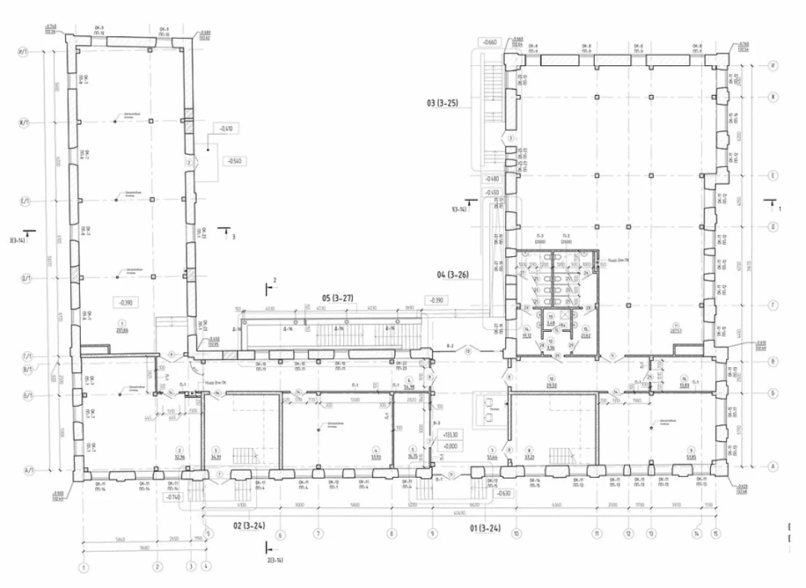
На момент начала работ здание не эксплуатировалось, ввиду чего активно шел процесс разрушения. По результатам обследования конструкций было принято решения о снятии нагрузок с кирпичных стен и реконструкции здания путем встраивания в здание нового железобетонного каркаса с передачей на него всех новых нагрузок.
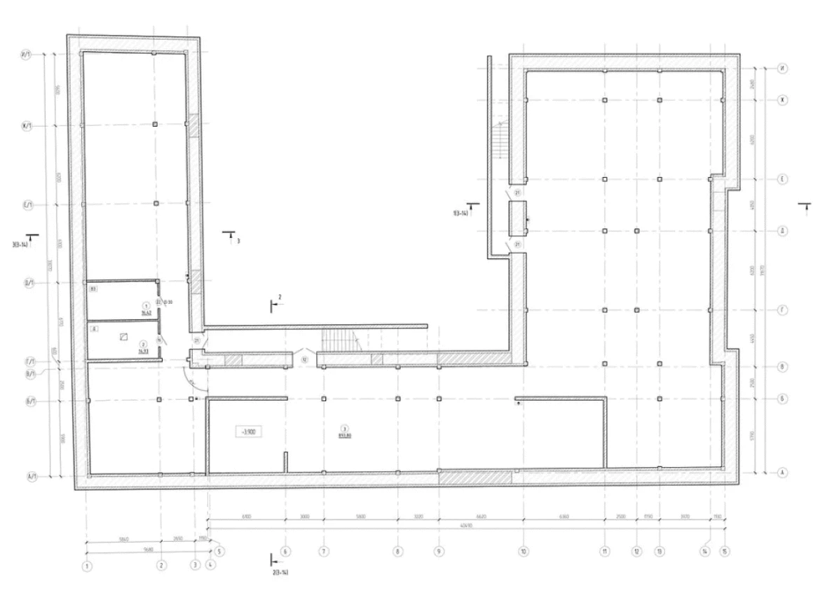
Сложность с планировочной и инженерной точки зрения была в требовании заказчика предусмотреть возможность адаптации тех. подвала в торговые помещения, что потребовало от специалистов разработку мероприятий для наименее затратного переформатирования помещений.
Планировочная структура определена основной задачей – создание бизнес-центра с организацией офисов свободной планировки. Основными помещениями являются офисные помещения, расположенные на 1, 2, 3 этажах. В подвале размещены технические помещения с отдельным входом со стороны двора. Главной задачей проекта является реконструкция здания с размещением офисных помещений на 1, 2, 3 этажах, сохраняя при этом исторический облик.
На момент начала работ здание не эксплуатировалось, ввиду чего активно шел процесс разрушения. По результатам обследования конструкций было принято решения о снятии нагрузок с кирпичных стен и реконструкции здания путем встраивания в здание нового железобетонного каркаса с передачей на него всех новых нагрузок.
Сложность с планировочной и инженерной точки зрения была в требовании заказчика предусмотреть возможность адаптации тех. подвала в торговые помещения, что потребовало от специалистов разработку мероприятий для наименее затратного переформатирования помещений.